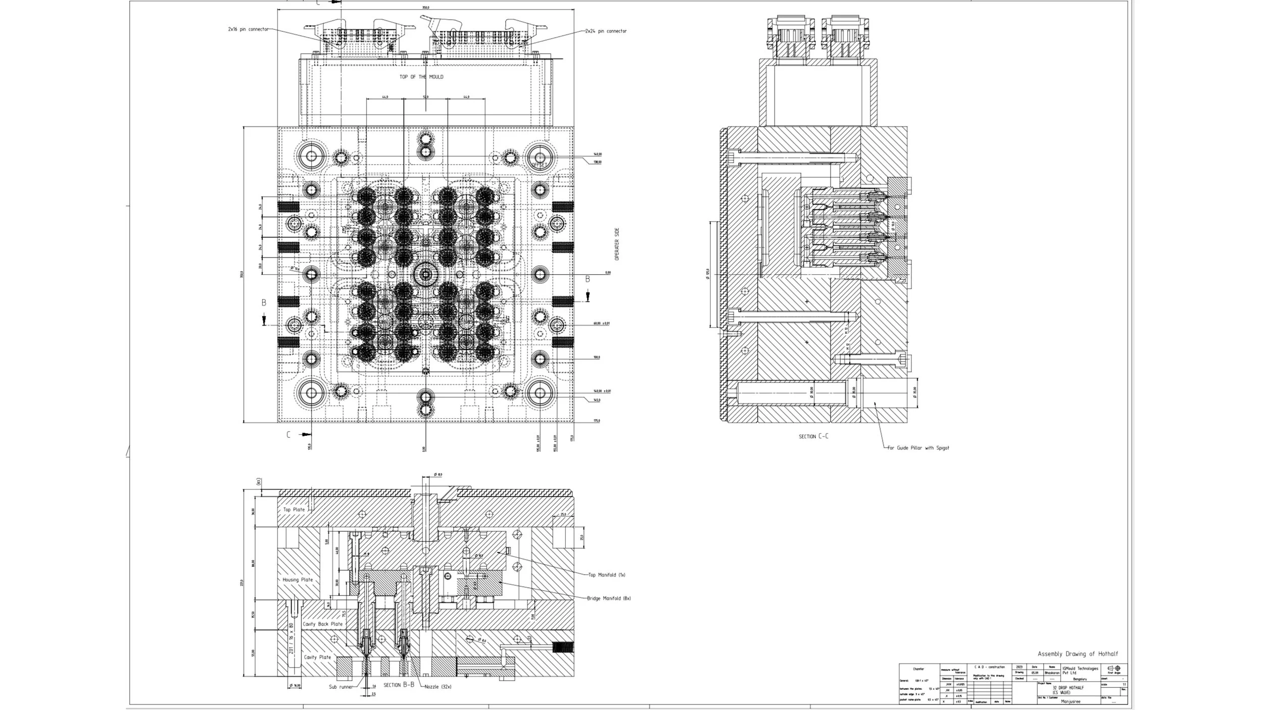
Cold to Hot Runner Conversion
Take a closer look at our Industry Proven Conversion process
aimed at saving you Time and Money
Take a closer look at our Industry Proven Conversion process
aimed at saving you Time and Money